H40 Tenor
Typologie
Einfamilienhaus mit Seeanstoss
Data
1’230m3 GV SIA416, 371m2 GF, 305m2 BF
Status
im Bau
Jahr
2022 - 2027
Zusammenarbeit
Studio Miskeljin,Visualisierungen









Zwischen Landschaft, Identität und Architektur
Das Projekt Tenor liegt an einem der ökologisch und landschaftlich sensibelsten sowie zugleich eindrucksvollsten Orte entlang des Zürichsees: Direkt am Wasser, ausserhalb der Bauzone, eingebettet in ein schmales Grundstück mit Seeanstoss. Die Lage verlangt eine Architektur, die nicht nur formale Präzision, sondern auch ein tiefes Verständnis für landschaftliche, kulturelle und gesetzliche Zusammenhänge aufweist.
Doch Tenor ist nicht nur ein architektonisches Projekt – es ist auch Ausdruck einer biografischen und kulturellen Verortung: Die Familie, für die dieses Haus entsteht, stammt ursprünglich aus Tibet und lebt heute in Rapperswil. Zwischen diesen beiden Welten entsteht ein Spannungsfeld, das das architektonische Konzept wesentlich prägt: Die Haut des Hauses – seine äussere Erscheinung aus lasierten Holzlamellen, Beton und Vegetation – ist stark vom Ort, von der Topografie, vom Licht des Zürichsees bestimmt. Das Innere hingegen folgt einer anderen Ordnung: einer kontemplativen, ruhigen, fast meditativen Raumlogik, die sich aus tibetischen Raumvorstellungen speist.
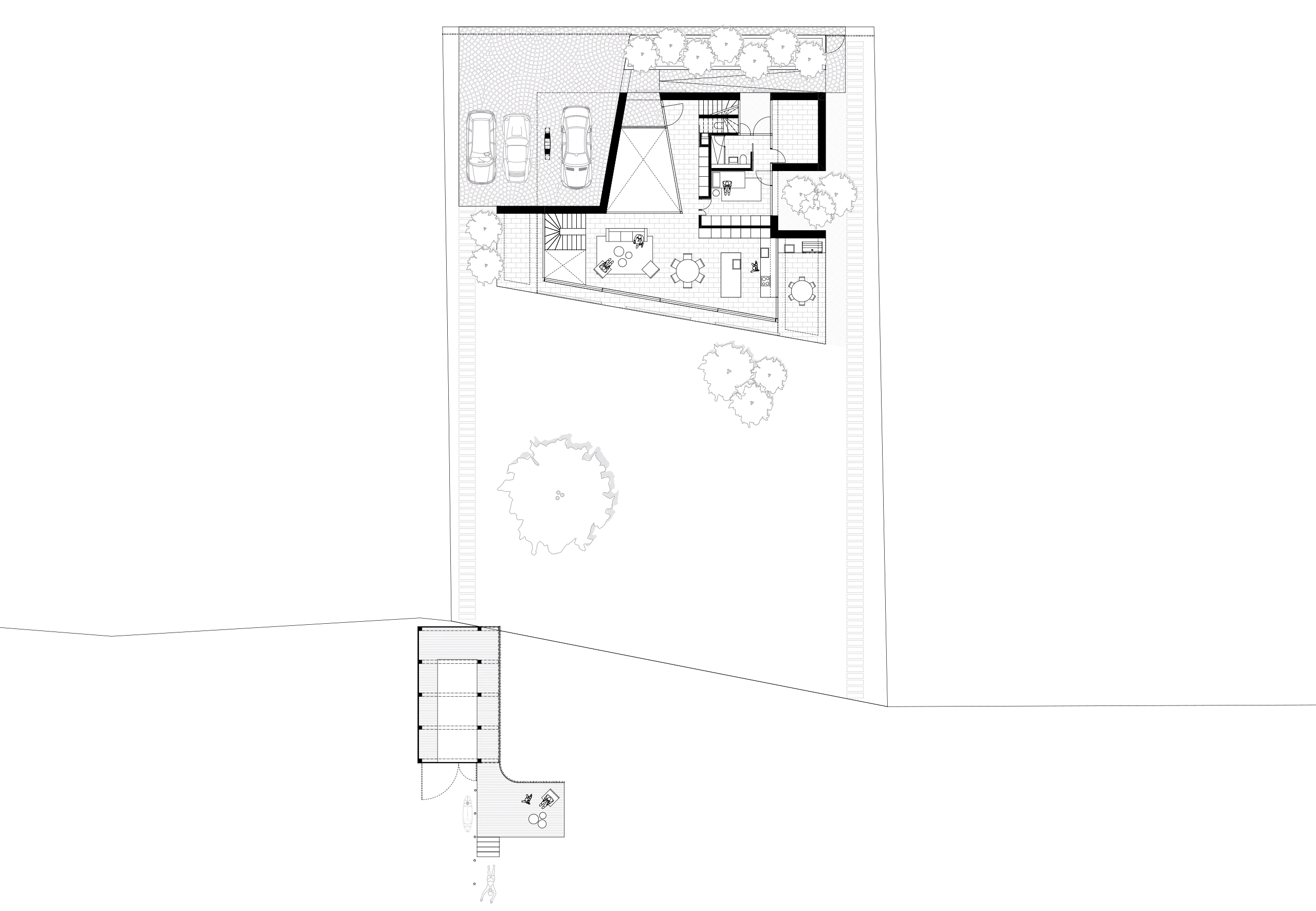
Raumorganisation: Entlang der Tiefe gebaut
Tenor entwickelt sich über drei Geschosse: ein zurückgezogenes Untergeschoss, ein offenes Erdgeschoss mit direkter Verbindung zum See, sowie ein Dachgeschoss, das sich in die Silhouette der Uferlandschaft einfügt.
Die Zonierung folgt einer klaren Hierarchie: Der Eingang erfolgt über die Strassenseite, introvertiert und geschützt. Er ist als präziser, überdeckter Einschnitt formuliert – mit Blickbezug auf den See und begleitet von Natursteinpflaster und zurückhaltender Vegetation. Innen öffnet sich das Gebäude in fliessenden Raumfolgen zum See hin – mit einem offenen Ensemble aus Wohnen, Essen und Kochen. Der zentrale Luftraum verbindet alle Geschosse miteinander und schafft vertikale Transparenz, Lichtführung und eine unerwartete räumliche Tiefe.
In der tibetischen Architektur gilt der vertikale Raum oft als symbolische Verbindung zwischen Erde und Himmel – zwischen dem Irdischen und dem Geistigen. Dieser Gedanke manifestiert sich hier subtil: Als räumliches Kontinuum, das Licht, Luft und Bewegung kanalisiert – und so zu einem inneren Resonanzraum wird, der die kulturelle Herkunft der Bewohner nicht abbildet, sondern räumlich interpretiert. In seiner Form erinnert der zentrale Luftraum an die Logik klösterlicher Innenhöfe – ruhig, geordnet, offen nach oben.
Architektur und Haltung: Reduktion, Erdung, Weite
Die Architektur von Tenor setzt auf eine stille, fast selbstverständliche Präsenz. Sie verzichtet auf gestische Geste und sucht stattdessen nach einer dichten Beziehung zwischen Ort, Materialität und Proportion.
Zur Strasse hin zeigt sich das Haus geschlossen, fast introvertiert – eine zeitgenössische Übersetzung regionaler Bautraditionen. Der Eingangsbereich bleibt zurückhaltend ins Volumen eingeschnitten, die Schwelle zum Haus bewusst als Übergang formuliert. Zum See öffnet sich das Volumen vollständig: mit weiten Blickachsen, durchlässigen Übergängen und einer konsequenten Entgrenzung zwischen Innen und Aussen.
Diese Dualität – zwischen Schutz und Öffnung, Aussenwelt und Innenleben – spiegelt auch die doppelte Identität der Bauherrschaft wider. Das Haus wird so zum Ort der Vermittlung: zwischen zwei Kulturen, zwei Landschaften, zwei Sprachen der Raumerfahrung.
Materialität und Atmosphäre: Natur als Leitmotiv
Die Materialisierung folgt der Idee einer zurückhaltenden Sinnlichkeit – robust, geerdet, warm. Sichtbeton, lasiertes Holz, weisse mineralische Oberflächen und steinerne Texturen bestimmen den architektonischen Ausdruck.
Der Dialog mit der Landschaft steht im Vordergrund: Der Garten fliesst in das Haus, die Terrassen nehmen Bezug zur Wasserlinie, die Texturen der Fassaden spiegeln die Farbigkeit der Umgebung. Gleichzeitig bleibt der Innenraum bewusst ruhig, fast still – als Raum der Sammlung, des Rückzugs und der inneren Weite.
So entsteht ein Haus, das nicht auf Wirkung zielt, sondern auf Zugehörigkeit. Das zugleich lokal verankert und innerlich geöffnet ist.
Ein Haus als Haltung
Tenor steht exemplarisch für eine Architektur, die aus dem Ort und aus der Biografie heraus entwickelt wird – nicht als Reaktion, sondern als präzise Interpretation. Es ist ein Haus, das im Spannungsfeld zwischen Natur, Gesetz und kultureller Identität agiert – und darin eine neue Selbstverständlichkeit des Bauens formuliert.
Die Kraft des Projekts liegt nicht im Spektakel, sondern in der Sorgfalt. In der Art, wie Innen und Aussen, Herkunft und Gegenwart, Offenheit und Schutz miteinander vermittelt werden.
Tenor ist keine Geste, sondern ein Gedanke – gebaut aus Licht, Raum und Erinnerung.










